vente maison gerardmer

424 000€ - 140m² - gerardmer

Maison 8 pièces - 424 000€

Photos disponibles de ce bien.

Gerardmer - Vend maison individuelle hors d'eau avec garage triple et projet architectural validÃ?©.

Ã?€ GÃ?©rardmer, dans un environnement rÃ?©sidentiel Ã? la topographie marquÃ?©e, cette construction rÃ?©cente s'inscrit dans une Ã?©criture architecturale contemporaine, pensÃ?©e pour dialoguer avec le relief et le paysage vosgien.

Ã?â?°difiÃ?©e sur une parcelle d'environ 400 m², la maison est aujourd'hui proposÃ?©e hors d'eau, laissant Ã? son futur propriÃ?©taire la libertÃ?© totale de finaliser le second oeuvre et d'amÃ?©nager les volumes intÃ?©rieurs selon ses usages et ses exigences.
La structure est rÃ?©alisÃ?©e, la toiture Ã? double pente est en place, et le projet bÃ?©nÃ?©ficie d'un permis de construire accordÃ?©.

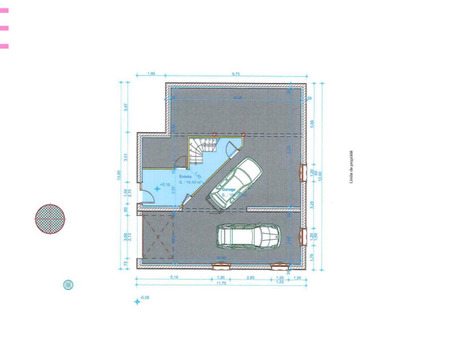
Le parti architectural dÃ?©veloppe une surface habitable d'environ 140 m², organisÃ?©e sur deux niveaux, complÃ?©tÃ?©e par un vaste garage en sous-sol de plus de 100 m², capable d'accueillir plusieurs vÃ?©hicules ainsi que des espaces de stockage ou annexes.

Les plans prÃ?©voient, au niveau principal, une piÃ?¨ce de vie orientÃ?©e sud et ouest, articulant salon, salle Ã? manger et cuisine, prolongÃ?©e par de gÃ?©nÃ?©reux espaces extÃ?©rieurs de type terrasse. Deux chambres, une salle de bains et des espaces de circulation structurent ce niveau.

L'Ã?©tage accueille trois chambres supplÃ?©mentaires, une seconde salle de bains, ainsi qu'une mezzanine, offrant une distribution cohÃ?©rente pour une rÃ?©sidence principale comme pour une maison de villÃ?©giature.

Le projet architectural validÃ?© au permis associe un soubassement enduit ton pierre, un bardage bois mÃ?©lÃ?¨ze pour les faÃ?§ades, une toiture en tuiles terre cuite, et des gouttiÃ?¨res en zinc, dans une composition sobre et durable, fidÃ?¨le Ã? l'esprit des constructions de qualitÃ?© en secteur montagnard.

Les raccordements aux rÃ?©seaux sont prÃ?©vus en limite de parcelle. Le projet intÃ?¨gre Ã?©galement un systÃ?¨me de chauffage par pompe Ã? chaleur, conformÃ?©ment aux normes thermiques en vigueur lors du dÃ?©pÃ?´t du permis.

Un bien rare Ã? GÃ?©rardmer, destinÃ?© Ã? une clientÃ?¨le souhaitant personnaliser intÃ?©gralement son intÃ?©rieur, tout en s'appuyant sur une base architecturale existante, des volumes dÃ?©finis et un cadre naturel recherchÃ?©.

Une opportunitÃ?© proposÃ?©e par Place PrivÃ?©e.

Les informations sur les risques auxquels ce bien est exposÃ?© sont disponibles sur le site GÃ?©orisques : www.georisques.gouv.fr